
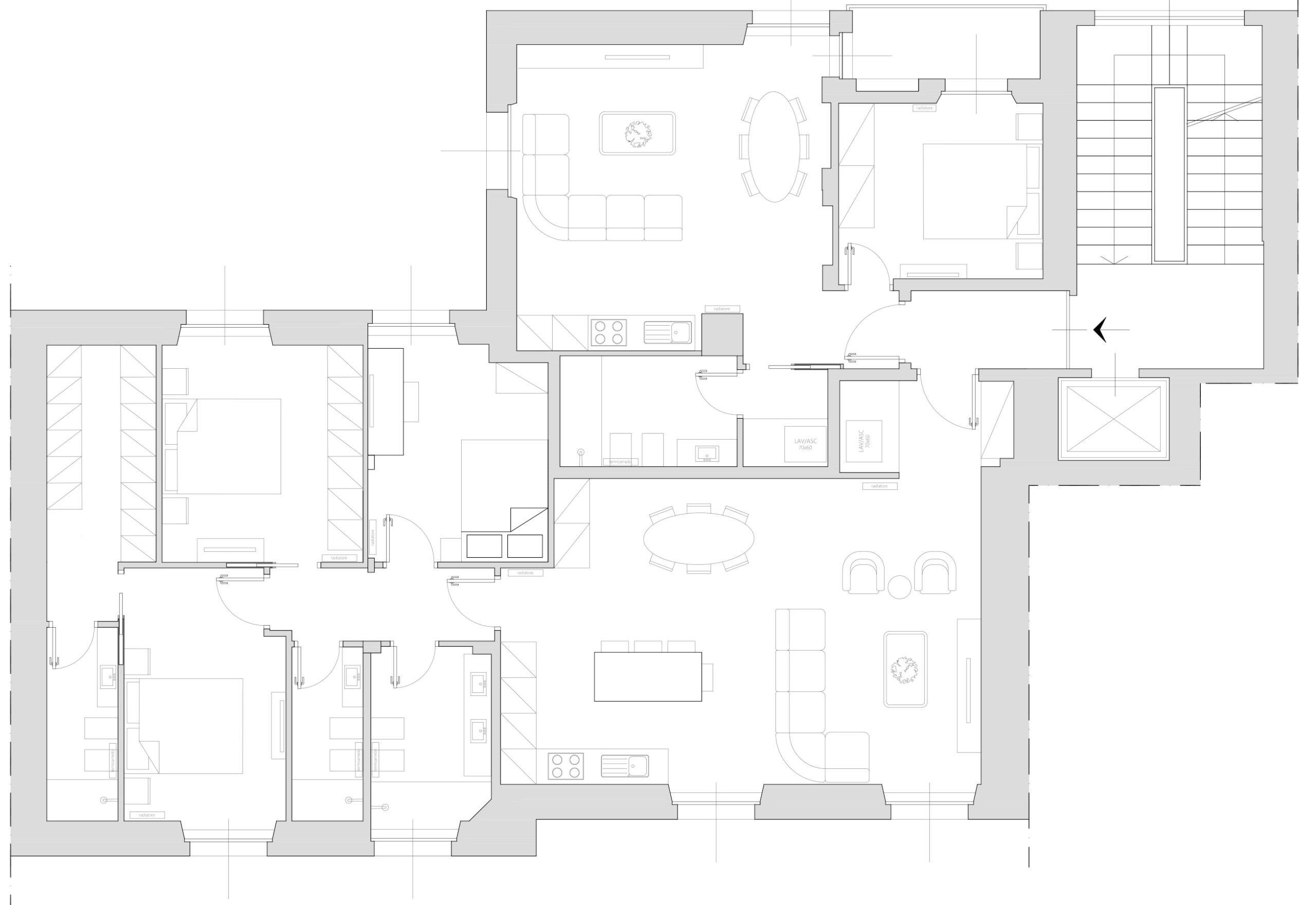
TorinoRiqualificazioneFrazionamento190 m²
Torino Centro: due nuove unità abitative nate da un frazionamento
Appartamento al 4 piano di 190 mq nel pieno centro della città di Torino. Il progetto di riqualificazione immobiliare ha previsto un frazionamento in due unità immobiliari distinte, precisamente un cinque locali e un bilocale.
Galleria
Scopri le immagini dell'intervento

Foto 1 di 19
Planimetrie
Stato di fatto e nuovo layout a confronto

