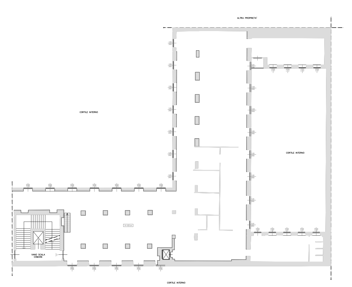
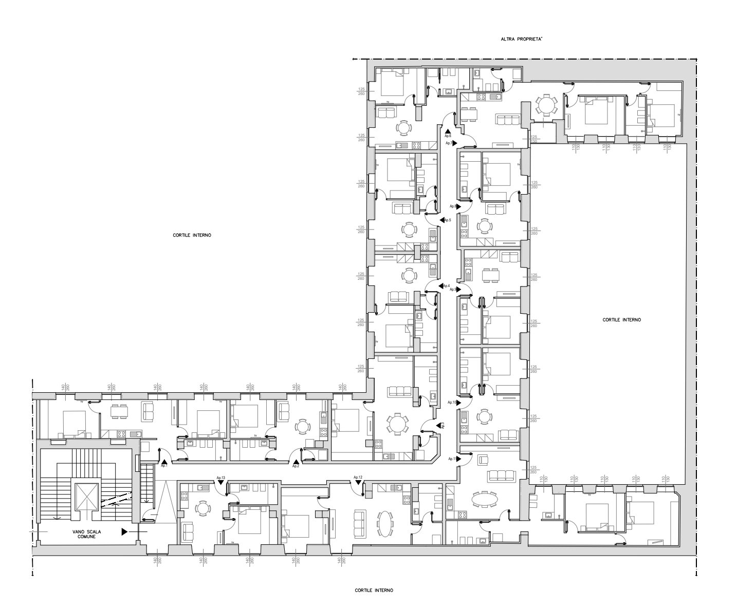
Operazione di sviluppo e riqualificazione di un’ex banca di 800 mq in pieno centro a Torino, che prevede un cambio destinazione d’uso a residenziale e il successivo frazionamento di un intero piano in 13 appartamenti di cui 10 bilocali e 3 trilocali.
Galleria
Scopri le immagini dell'intervento
Planimetrie
Stato di fatto e nuovo layout a confronto
